Будьте всегда в курсе!
Подписка на Дайджест мебельщика и новости компании
Наш уважаемый гость
Добро пожаловать в каталог товаров компании "Мебель GROUP"
Если вы являетесь мебельщиком, просим Вас продолжить работу с каталогом наших товаров по этой ссылке
Каталог товаровЕсли Вы Мебельщик, профессионально интересующийся материалами и фурнитурой для производства мебели, предлагаем Вам продолжить работу с каталогом наших товаров в Вашем личном кабинете
(Преимущества работы через личный кабинет)
Альтернативное название
|
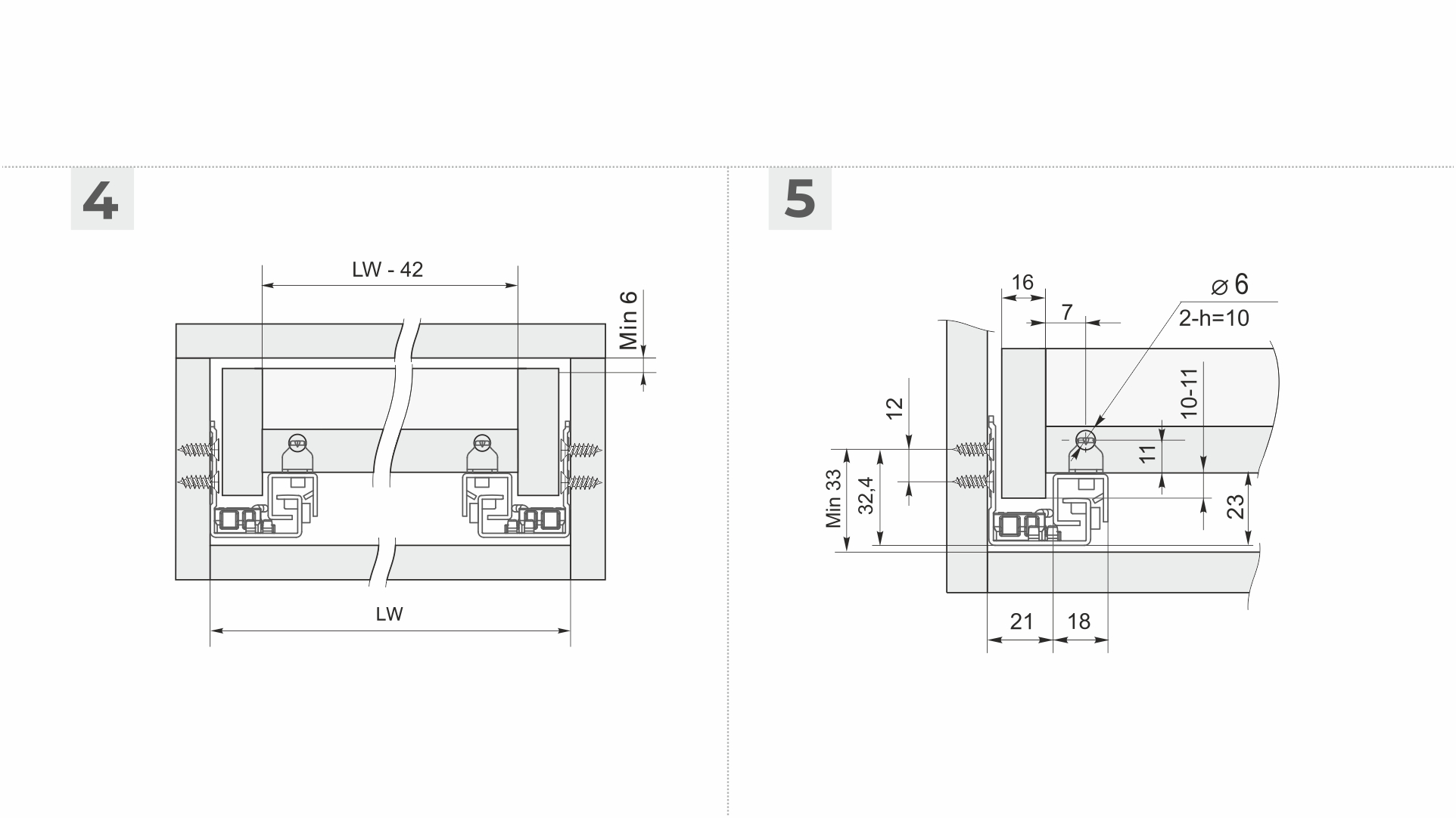
Направляйки, салазки, направляющие |
Скрытый монтаж
|
Да |
Глубина направляющих
|
400 |
Полное выдвижение
|
Нет |
Система плавного закрывания
|
Да |
Система нажал-открыл
|
Нет |
Несущая способность (допустимая нагрузка)
|
20 |
Новинка
|
Нет |